Thiết kế thi công cải tạo sân phơi thành phòng ngủ và phòng thờ tiện tích
Nhu cầu sử dụng công năng cho ngôi nhà càng tăng mà diện tích thì có hạn chính vì vậy cải tạo nâng thêm tầng, tạo phòng trên Tum là lựa chọn số 1 hiện nay. Việc bạn thiết kế và sắp xếp bố cục hợp lý sẽ giúp bạn tận dụng không gian rất tốt. Dưới đây 2H HOME xin chia sẻ với bạn đọc dự án cải tạo thi công tầng Tum thành phòng ngủ và sân phơi cho nhà chị Hoa tại Hoàng Mai, Hà Nội
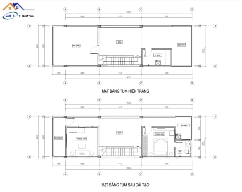
Thiết kế thi công cải tạo tầng Tum
Chủ đầu tư: Chị Hoa
Địa chỉ: Hoàng Mai, Hà Nội
Diện tích: 45M2
Do nhu cầu bé trai ngày càng lớn và gia đình cần cải tạo thêm tầng Tum để làm thêm phòng ngủ và phòng thờ
Hiện trạng mặt bằng trước khi cải tạo



Thiết kế và thi công cải tạo tầng tum hoàn thiện

Hoàn thiện không gian phòng ngủ



Không gian phòng thờ

Xây thêm nhà vệ sinh trên tầng Tum.

Mẫu thiết kế thi công cải tạo tầng tum thành phòng ngủ và ban công bạn đọc có thể tham khảo thêm để lên ý tường thi công cho nhà mình nhé
Không gian phòng ngủ

Sảnh ban công đón nắng




Bạn đang có ý định nâng tầng, cải tạo tầng thượng thành phòng ngủ, nhà thờ hay ban công… chúng tôi 2H HOME ở đây để giúp bạn thiết kế và thi công hoàn thiện.
Công ty Xây dựng và Thương mại 17 Hà Nội – Sửa chữa & Cải tạo nhà trọn gói 2H HOME
Văn phòng số 1: Số nhà 25, ngõ 383 Tam Trinh, Phường Hoàng Văn Thụ, Quận Hoàng Mai, Hà Nội.
Văn phòng số 2: Số 162 Khương Trung, Thanh Xuân, Hà Nội
Cơ sở 1: Số 10 Xuân Thủy, Cầu Giấy, Hà Nội
Cơ sở 2: 20A Hàng Gai, Hoàn Kiếm, Hà Nội
Cơ sở 3: Số 104 Âu Cơ, Tây Hồ, Hà Nội
Cơ sở 4: Số 351 Lĩnh Nam, Hoàng Mai, Hà Nội
Kho xưởng: Số 5 ngõ 200 Vĩnh Hưng, Hoàng Mai, Hà Nội
Website : https://nhadep2h.vn
Website : https://www.thietkethicongnoithat2hhome.vn
Website : https://thietbigiadinh2h.vn
Rất vinh hạnh khi được phục vụ quý khách hàng
Bài đọc tham khảo thêm: Cải tạo tầng Tum bằng tấm bê tông siêu nhẹ


