Nhiều gia đình muốn sở hữu một căn nhà sang trọng, đầy đủ tiện nghi nhưng không đủ khả năng để xây mới. Phương án thông minh chính là cải tạo nâng tầng nhà phố. Để có một không gian sống rộng rãi, thoải mái, khang trang và hiện đại hơn. Tuy nhiên, để khoác lên căn nhà một chiếc áo mới dựa trên nền móng cũ là điều không hề dễ dàng. 2H HOME xin chia sẽ một số lưu ý nên và không nên làm cũng như công trình 2H HOME thực hiện. Kính mời các độc giả cùng tham khảo qua bài viết dưới đây.
Sự cần thiết của việc cải tạo nâng tầng nhà phố
Có nhiều lý do để quyết định nên cải tạo nâng tầng nhà phố hay không. Thông thường là do nhu cầu sử dụng nhà ở tăng lên. Khi diện tích nhà ở hiện tại không đáp ứng được không gian sống. Bạn muốn mở rộng chúng mà không muốn xây mới. Lúc này, xây thêm tầng mới trên kiến trúc ngôi nhà hiện tại của bạn lại hữu hiệu hơn cả. Còn một lý do khác là khi xây nhà, kinh tế của bạn chưa đủ để xây nhiều tầng. Bạn chỉ xây tạm một tầng để giải quyết nhu cầu trước mắt. Khi kinh tế của bạn đã vững, bạn muốn xây thêm tầng để mở rộng không gian sinh hoạt. Lúc này, việc cải tạo nâng tầng nhà là điều dễ hiểu.

Cải tạo nâng tầng nhà phố đẹp mãn nhãn với chi phí thấp
Những điều cần chú ý khi cải tạo nâng tầng
1.Nâng tầng quá cao so với nền móng cũ:
– Khi nâng tầng, tuổi thọ căn nhà sẽ bị giảm đi đáng kể do trọng lực đè lên nền móng rất lớn. Nguy cơ sụt lún, nghiêng nhà thậm chí đổ nhà có thể xảy ra. Do đó cần tính toán khả năng chịu lực của nền móng cũ hợp lý rồi mới tính đến chiều cao tối đa căn nhà có thể xây.
2. Bỏ qua các hiện tượng nghiêng, lún, nứt thường xuyên
– Sự kết hợp giữa nền móng cũ của căn nhà với bộ sắp thép vật liệu mới có thể thiếu đồng nhất. Vì vậy hãy chú ý quan sát căn nhà của mình khi có những hiện tượng nghiêng, lún, nứt nẻ trong quá trình thi công sửa chữa và cả khi đã hoàn thiện công trình.
3. Không kiểm tra khả năng chịu lực trên thực tế
Như đã nói ở trên, khả năng chịu lực của nền móng tương ứng với độ cao tầng nhà và vật liệu xây dựng lên nó. Vì thế cần tính toán kỹ càng trước khi tiến hành thi công. Tuy nhiên, cho dù đã thi công rồi bạn vẫn nên xem xét, kiểm tra khả năng chịu lực trên thực tế của tòa nhà. Để chắc chắn các tính toán trước đó là chính xác nếu có sai sót có thể phát hiện kịp thời và có phương án điều chỉnh thích hợp.
4. Vi phạm quy định độ cao và khoảng lùi trong bản vẽ cấp phép
Mọi bản vẽ thiết kế tòa nhà đều được các kiến trúc sư tính toán tỉ mỉ cẩn thận. Và đều được cấp phép thông qua để đảm bảo an toàn. Nếu căn nhà không chịu được trọng lực của tầng nhà thì sẽ gây ra các tình huống hết sức nguy hiểm.(Sụt lún, nghiêng, đổ nhà, sập nhà). Ngay cả trong quá trình thi công hay sau khi đã hoàn thành. Bên cạnh đó, nếu vi phạm bất kỳ quy định nào trong xây dựng đều không được phép. Điều đó khiến việc thi công bị đình trệ, hoãn thi công khiến thời gian tu sửa căn nhà kéo dài vô thời hạn.
Cải tạo nâng tầng nhà phố Hà Nội – Hiện đại hóa không gian

Phương án sửa chữa cải tạo nâng tầng nhà ô thông thoáng
Thiết kế, cải tạo nhà cũ thành mới cho anh Hùng có kích thước 5.2 x 17m. Theo phương án thiết kế cũ diện tích cải tạo cũng bằng chính diện tích lô đất. Trước đây, khi xây dựng mẫu nhà phố gia chủ đã có dự tính lên tầng. Nên kết cấu xây dựng của hai tầng mái bằng đơn giản dưới đất rất chắc chắn đảm bảo để đặt thêm tầng lầu nữa.
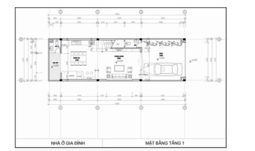
Mặt bằng sửa không gian nhà phố anh Hùng
Trước khi lên phương án thiết kế sửa chữa cải tạo nâng tầng nhà cũ. 2H HOME đã tiến hành khảo sát toàn bộ nhà cũ của gia chủ. Xem xét hồ sơ bản vẽ thiết kế trước đây. Xin giấy phép sửa chữa của UBND thành phố. Giúp nắm rõ được chiều cao số tầng cho phép.

Cách bố trí nội thất sửa nhà phố nâng tầng
Thiết kế dưới trệt có hai phòng vệ sinh dùng chung, tách biệt gara để xe. Với các phòng phía sau bằng kính cường lực có gara để xe riêng. Một phòng vệ sinh phương án này phù hợp cho nhu cầu sử dụng của gia đình. Có thể tận dụng vị trí gara để xe như một khu vực kinh doanh riêng mà không ảnh hưởng đến cuộc sống riêng của gia đình.
Nếu chỉ cải tạo mặt bằng công năng bên trong. Mà không cải tạo mặt tiền bên ngoài – Bộ mặt của ngôi nhà thì quả là một thiếu sót. Trước đây thiết kế nhà cũ của gia chủ là một mẫu nhà ống đơn giản. Phong cách xây dựng không rõ ràng đã được kiến trúc sư của 2H HOME cải tiến, mang tới vẻ đẹp với chi phí không quá nhiều.
Cách thiết kế sửa chữa nhà ống thông thoáng
Kiểm tra lại thực trạng thiết kế hiện tại sau một quãng thời gian sử dụng là điều rất quan trọng. Để kiến trúc sư đánh giá được kết cấu chịu lực từ đó có phương án sửa chữa nâng cấp hợp lý nhất. Theo yêu cầu của gia chủ, kiến trúc sư của 2H HOME đã thiết kế. Cải tạo thêm không gian sống thoáng mát hơn xu hướng hiện đại.

Không thay đổi kích thước xây dựng ở các tầng trên. Mà kiến trúc sư đưa vào thiết kế ô thông tầng lớn ở giữa. Phía sau đảm bảo lấy sáng cho các phần thiết kế xây dựng. Thiết kế, cải tạo tăng thêm diện tích sử dụng, cho công năng sử dụng rất lớn 4 phòng ngủ khép kín. Một phòng thờ, phòng sinh hoạt chung, phòng khách, phòng bếp. Gara để xe và có đủ sân phơi sân thượng hoàn chỉnh.

Hình ảnh căn nhà khi lên thiết kế 3D

2H HOME – Đơn vị tiếp nhận công trình sửa chữa nhà nâng tầng các loại hình nhà ở
Đến với chúng tôi bạn có có được dịch vụ và sản phẩm tốt nhất với sự tâm huyết và yêu nghề của đội ngũ 2H HOME
- Khảo sát tư vấn miễn phí tận nhà
- Miễn phí thiết kế khi thi công trọn gói
- Tiết kiệm 25% chi phí sửa nhà, nâng tầng khi thi công trọn gói
- Thi công nhanh, đúng tiến độ
- Bảo hành công trình từ 5-7 năm
Nhu cầu để ở ngày càng tăng lên do tốc độ đô thị hóa nhanh, diện tích đất thì eo hẹp. Do vậy không ít các gia đình nghĩ đến việc sửa nhà nâng tầng nhà ở để tăng khoảng không gian sinh hoạt cho cả gia đình. Hoặc tăng diện tích sử dụng các không gian để ở và cho thuê.
2H HOME là đơn vị tiếp nhận sửa chữa, cải tạo, nâng tầng các loại hình nhà ở uy tín. Chất lượng với các tiêu chí: đẹp, nhanh, tiết kiệm. Nếu quý khách có nhu cầu sửa chữa nhà ở hoặc có nhu cầu cải tạo nâng tầng nhà ở. Hãy nhấc máy liên hệ tới số Hotline: 0971.427.044
============================
Công ty Xây dựng và Thương mại 17 Hà Nội – Sửa chữa & Cải tạo nhà trọn gói 2H HOME
Văn phòng số 1: Số nhà 25, ngõ 383 Tam Trinh, Phường Hoàng Văn Thụ, Quận Hoàng Mai, Hà Nội.
Văn phòng số 2: Số 162 Khương Trung, Thanh Xuân, Hà Nội
Cơ sở 1: Số 10 Xuân Thủy, Cầu Giấy, Hà Nội
Cơ sở 2: 20A Hàng Gai, Hoàn Kiếm, Hà Nội
Cơ sở 3: Số 104 Âu Cơ, Tây Hồ, Hà Nội
Cơ sở 4: Số 351 Lĩnh Nam, Hoàng Mai, Hà Nội
Kho xưởng: Số 5 ngõ 200 Vĩnh Hưng, Hoàng Mai, Hà Nội
Website : https://nhadep2h.vn
Website : https://www.thietkethicongnoithat2hhome.vn
Website : https://thietbigiadinh2h.vn
Rất vinh hạnh khi được phục vụ quý khách hàng
Bài viết tham khảo:
Mẫu thiết kế nhà phố 4 tầng 50m2 hiện đại có Gara để xe ô tô >>> BẤM XEM
Mẫu thiết kế nội thất nhà đẹp diện tích nhỏ đầy ấn tượng >>> BẤM XEM
